Appartamento in vendita a Grosseto
Grosseto (GR), Grosseto
- € 172.000 - Trattabile
- 119mq
- 2
- 1
Descrizione immobile
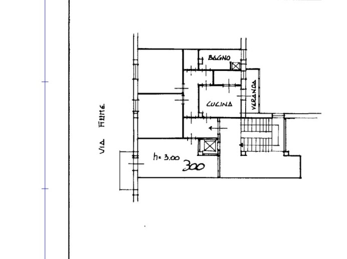
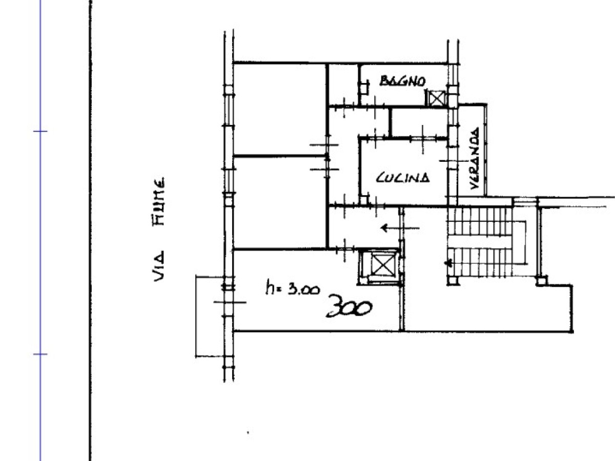
Appartamento da ristrutturare posto al quarto piano con ascensore composto da ingresso, soggiorno con balcone, zona pranzo e cucinotto e veranda, due camere matrimoniali e bagno (rifatto) con finestra, ripostiglio.
All'immobile pertiene una soffitta al piano sesto.
Caratteristiche principali
Stato: Completamente da Ristrutturare
Numero livelli: 1
Ingresso: Condominiale
Classe Immobile: Medio signorile
Ascensore: Si
Cucina: Abitabile
Camere: 2
Bagni: 1
Piano: 4° piano di 6° piano
Arredamento: Non arredato
L'immobile è vicino a...
Aeroporti: |
Grosseto Airport (4.0 km) |
---|---|
Ospedali: |
Della Misericordia Hospital Emergency Room (1.6 km) Centro Medico Vasari (1.9 km) Andrea Vesalio Institute (4.7 km) |
Scuole: |
Liceo Statale Antonio Rosmini (552 m) ISIS Fossombroni (822 m) Scuola elementare Aristide Gabelli (862 m) Scuola primaria Pietro Aldi (1.0 km) Scuola primaria Gino Tombari (1.6 km) Polo Luciano Bianciardi (1.9 km) |
Università: |
Confesercenti Grosseto (2.7 km) |
Veterinari: |
Vieri Dr. Barbara | Ambulatorio Veterinario (953 m) |
Negozi: |
Le Delizie Della Maremma (43 m) Rosticceria Pizzeria Pasta Fresca da Romano (494 m) 53 Pasta e Pizza (504 m) Idalex mini market (644 m) |
Bar e ristoranti: |
Caffe Glamour (162 m) Bar La Pace The Dreamers Sas (454 m) Mordimmi (567 m) Pizza & Delizie (650 m) Bottega 1954 (651 m) Coffee House (762 m) |
Cinema e teatri: |
Anima Scenica APS (442 m) Cinema Stella (1.4 km) |
Fermate autobus: |
Grosseto F.S. (1.2 km) Stazione di Grosseto (1.3 km) |
Stazioni treno: |
Montepescali (14.6 km) |
Parcheggi: |
Hotel Airone (449 m) Parcheggio Nannini (749 m) |
Planimetrie
Prestazione Energetica
G
Riscaldamento: Autonomo
Tipo riscaldamento:
Radiatori
Alimentazione: Metano
Calcola rata del mutuo
%
€
€
€
€
70%
rata
IMMOBILI SIMILI
Rif: AQ-2018

Appartamento in Vendita
Grosseto
100.000 €
Rif: AQ-2163

Appartamento in Vendita
Grosseto - Istia D'ombrone
162.000 €
Rif: AQ-2139

Appartamento in Vendita
Grosseto
174.000 €